ID CP2263272

Ansamblul rezidential Cosmopolis 78 mp

Această proprietate nu mai este activă,
te invităm să vizualizezi proprietăți similare

ID CP2263272

600,000 € (negociabil)

Apartament de vânzare
Stefanestii de Jos
2015

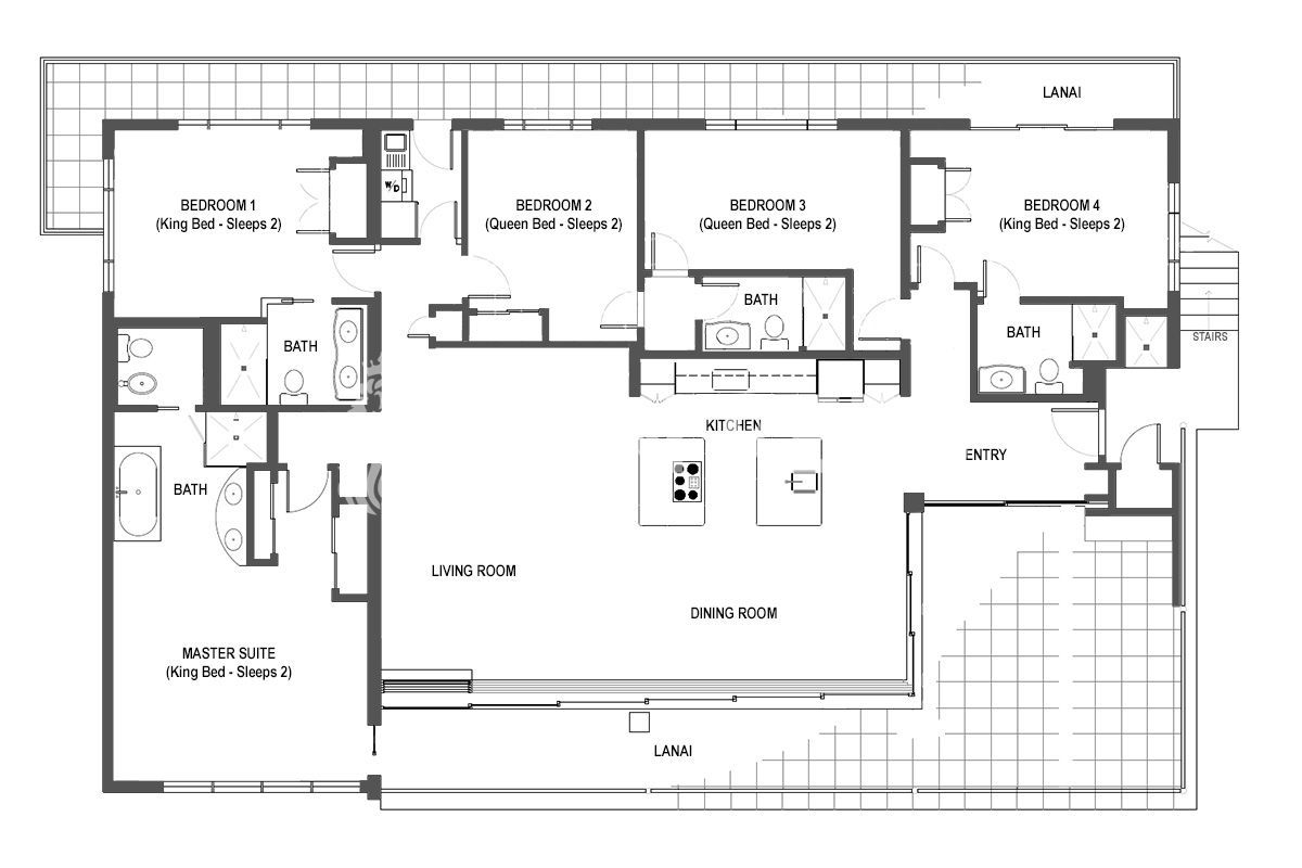
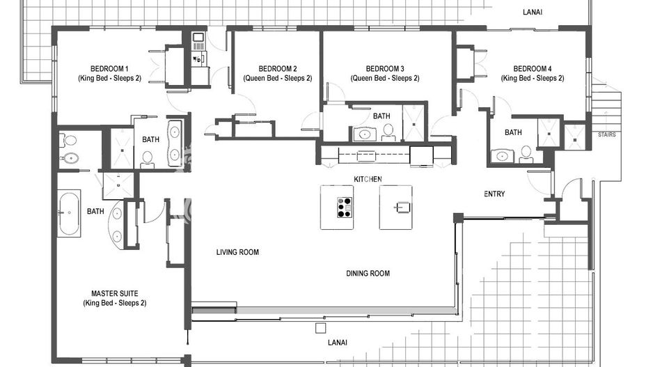
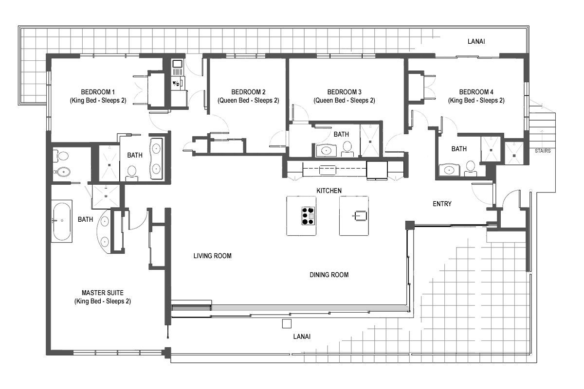
Ansamblul rezidential Cosmopolis va pune la dispozitie o gama diversificata de imobile, toate in blocuri noi si la cheie. Prin urmare avem 7 modele de apartamente tip studio, 8 tipuri de apartamente cu 2 camere, 6 modele de apartamente cu 3 camere, 1 model tip duplex si 3 modele tip vila .

Citește mai mult

  • Tip apartament
    Apartament
  • Disponibilitate
    Imediat
  • Imobil
    Bloc de apart.
  • Stadiu construcție
    Finalizată
  • An construcție
    2015
  • Tip construcție
    Beton

Facilități

Apă
Boxă la subsol
Canalizare
CATV
Curent
Curte
Gaz
Grădină proprie
Iluminat stradal
Internet
Izolație exterioară
Lift
Magazie
Mijloace de transport în comun
Saună
Spa
Străzi asfaltate
Străzi betonate
Telefon
Vedere spre munte
Necesare:

Site-ul nu poate funcționa corect fără aceste cookie-uri. Vezi cookie-urile

Statistică:

Strângem statistici anonime despre voi, vizitatorii unici, pentru a vă îmbunătăți experiența dumneavoastră. Vezi cookie-urile

Marketing:

Pentru a ne promova mai eficient serviciile noastre, folosim cookies pentru a vă identifica și a vă oferi proprietăți și servicii personalizate. Vezi cookie-urile

Acest site folosește cookies, află detalii. Alege ce tipuri de cookies dorești să permitem: