ID CP440707

Spatiu Comercial EXCELENT in zona Dristor - Mihai Bravu

Această proprietate nu mai este activă,
te invităm să vizualizezi proprietăți similare

ID CP440707

4,000,000 €

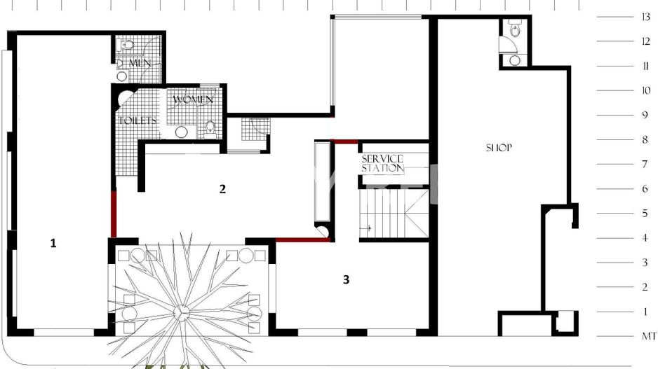
Spațiu comercial de vânzare
Mihai Bravu, Bucuresti
1,840 mp
1988

Agentia Demo va prezinta spre vanzare un spatiu comercial ideal pentru investitie.

Perfect pentru:

- sediu de Banca

- Farmacie

- Supermarket

- sala de Jocuri mecanice si electronice

Precum si orice alte servicii.

- Pret Negociabil

- Exista deschidere in a colabora cu agentiile imobiliare.

- Se va inchiria la cea mai buna oferta primita pana la data de 10 Octombrie 2017, idiferent de valoarea acesteia.

Situat pe Bdul. Mihai Bravu, artera principala a Capitalei, langa metrou, statie RATB, intr-o zona aglomerata si dens populata, in apropierea intersectiei Dristor / Baba Novac.

Spatiul se prezinta in conditii excelente!

Citește mai mult

  • Tip imobil
    Bloc de apart.
  • Etaj
    Parter
  • Număr camere
    3
  • Suprafață construită
    2,020 mp
  • Suprafață utilă
    1,840 mp
  • Vitrină (m)
    7.0 m
  • Disponibilitate
    Imediat
  • Compartimentare spațiu
    Flexibil
  • An construcție
    1988
  • Număr etaje clădire
    10

Facilități

Acces pentru persoane cu dizabilități
Acces secundar marfă
Afișare logo pe clădire
Apă
Canalizare
Centrală termică
Contorizare separată
Curent
Gaz
Grupuri sanitare amenajate și utilate
Irigații
Posibilitate terasă
Sistem de alarmă
Sistem de ventilație
Necesare:

Site-ul nu poate funcționa corect fără aceste cookie-uri. Vezi cookie-urile

Statistică:

Strângem statistici anonime despre voi, vizitatorii unici, pentru a vă îmbunătăți experiența dumneavoastră. Vezi cookie-urile

Marketing:

Pentru a ne promova mai eficient serviciile noastre, folosim cookies pentru a vă identifica și a vă oferi proprietăți și servicii personalizate. Vezi cookie-urile

Acest site folosește cookies, află detalii. Alege ce tipuri de cookies dorești să permitem: