ID CP632352

Spațiu Comercial - Tipografia Brastar

ID CP632352

165,000 € + 21% TVA

Spațiu comercial de vânzare
Exterior Nord, Brasov
566.7 mp
2008

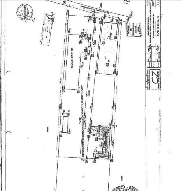
Teren imprejmuit la strada de acces cu un gard din plase de sarma. Curte interioara partial betonata

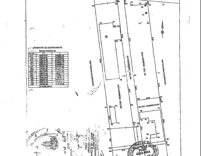
Teren: 871,31 mp.

- front de 42,15 m la strada de acces (drum de servitute)

- utilitati: curent electric, apa, gaz, canalizare

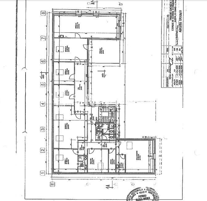
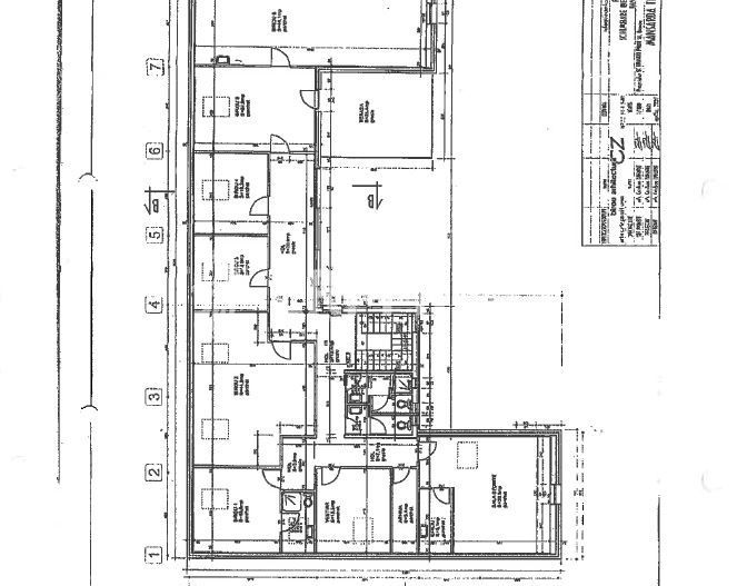
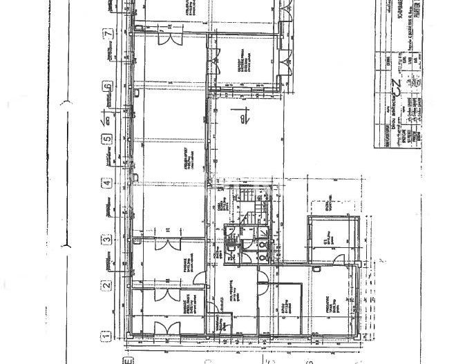
Tip constructie: parter cu mansarda (spatiu multifunctional)

- Suprafata construita la sol 329,8 mp

- Suprafata construita desfasurata 636,2 mp

- Suprafata utila 566,7 mp

- anul finalizarii constructiei 2008

Structura de rezistenta: fundatii continue si bulbi de beton in dreptul stalpilor; structura mixta cadre si zidarie; placa peste parter din beton armat monolit; sarpanta asezata pe un parapet perimetral inaltat la cca 100 cm.

Finisaje: pereti tencuiti si zugraviti acrylic in zona spatiilor de productie si birouri, placati cu faianta in zona grupurilor sanitare; peretii exteriori termoizolati; pardosela: gresie in zona holuri, grupuri sanitare, spatii servicii, parchet laminat in zona birourilor, ciment acoperit cu linoleum in sala de productie (masinilor de tiparit); tamplarie exterioara si interioara din pvc cu geam termopan Invelitoare: tabla Lindab; ferestre de mansarda de tip Velux. Instalatii: electrica monofazica si trifazica; sanitara cuprinde obiectele din portelan si traseele din pvc; de incalzire asigurata de 2 centrale termice pe gaz.

Citește mai mult

  • Tip imobil
    Depozit
  • Trafic pietonal
    Fără trafic pietonal
  • Etaj
    Parter, Mansarda
  • Număr camere
    8
  • Număr băi
    4
  • Număr terase
    1
  • Număr bucătării
    1
  • Suprafață construită
    636.2 mp
  • Suprafață utilă
    566.7 mp
  • Suprafață teren
    871 mp
  • Front stradal
    34.0 m
  • Înălțime interioară
    2.5
  • Disponibilitate
    Imediat
  • Compartimentare spațiu
    Compartimentat
  • Număr locuri parcare
    2
  • An construcție
    2008
  • Număr etaje clădire
    1
  • Are mansardă
    Da
  • Cadastru
    Există
  • Intabulare
    Există
  • Mod de dobândire
    Contract
  • Certificat Energetic
    În Lucru

Facilități

Acces secundar marfă
Apă
Canalizare
Centrală termică
Curent
Grupuri sanitare amenajate și utilate
Posibilitate terasă
Sistem de alarmă
Utilități în zonă
Daniela Agentescu - Compania ta
Daniela Agentescu
Broker Imobiliar

0729 743 241


Solicită chiar acum o vizionare
Nume
Telefon
Email
Sună acum Solicită vizionare
Necesare:

Site-ul nu poate funcționa corect fără aceste cookie-uri. Vezi cookie-urile

Statistică:

Strângem statistici anonime despre voi, vizitatorii unici, pentru a vă îmbunătăți experiența dumneavoastră. Vezi cookie-urile

Marketing:

Pentru a ne promova mai eficient serviciile noastre, folosim cookies pentru a vă identifica și a vă oferi proprietăți și servicii personalizate. Vezi cookie-urile

Acest site folosește cookies, află detalii. Alege ce tipuri de cookies dorești să permitem: